55 nye boliger på vej til Lunderskov Syd

LUNDERSKOV: Det er populært at bo i Lunderskov. Sammen med Christiansfeld er byen placeret på toppen af listen over solgte grunde i kommunens centerbyer. Og nu er der flere ny grunde på vej.

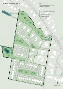
Byens udvikling af nye boligområder har primært været koncentreret i den nordlige del af byen. Men den nye udstykning ligger i den sydlige del af byen.

Kolding Kommune Plan, Bolig- og Miljøudvalg har netop lagt sidste hånd på et forslag til ny lokalplan for en privat bygherre. 

Det omfatter et areal på cirka 4,5 hektar til nye boliger. beliggende ved den sydl,ge indfaldsvej til byen, Kirkevejen, og den lille sidevej, Rugvang.

Den private bygherre vil opføre 55 boliger, fordelt med 6-9 boliger som fritliggende enfamiliehuse, og de resterende boliger fordelt på såkaldte kompaktparceller og rækkehuse.

Af sagens behandling i udvalget fremgår, at projektet giver mulighed for 9 enkeltstående boliger, som åbne/lave boliger på grunde fra 300 til 700 m2. Bebyggelsen vil kunne forventes i op til 2 etager med bygningshøjde på maksimum 8,5 meter.

Projektet giver mulighed for kompaktparceller som enkeltstående boliger på grunde fra 400 til 600 m2 med boligarealer fra 75 til 150 m2. Og der vil også blive mulighed for at opføre rækkehuse, udstykket på grunde fra 300 til 400 m2 tillagt det fælles friareal.

Efter endt behandling i kommunen vil lokalplanforslaget blive sendt i offentlig høring før endelig godkendelse i byrådet.

/bro

Se også